Dom T1

Dom T1,


Powierzchnia użytkowa 151,5m2
Powierzchnia zabudowy 111,98m2
Wymiar zewnętrzny budynku 10,5x11,72 m

PARTER:
1. komunikacja 14,7m2
2. gabinet 15,2m2
3. salon z jadalnią 49,3m2
4. kuchnia 8,1m2
5. WC 4,1m2
6. pralnia 5,2m2

RAZEM 96,6m2

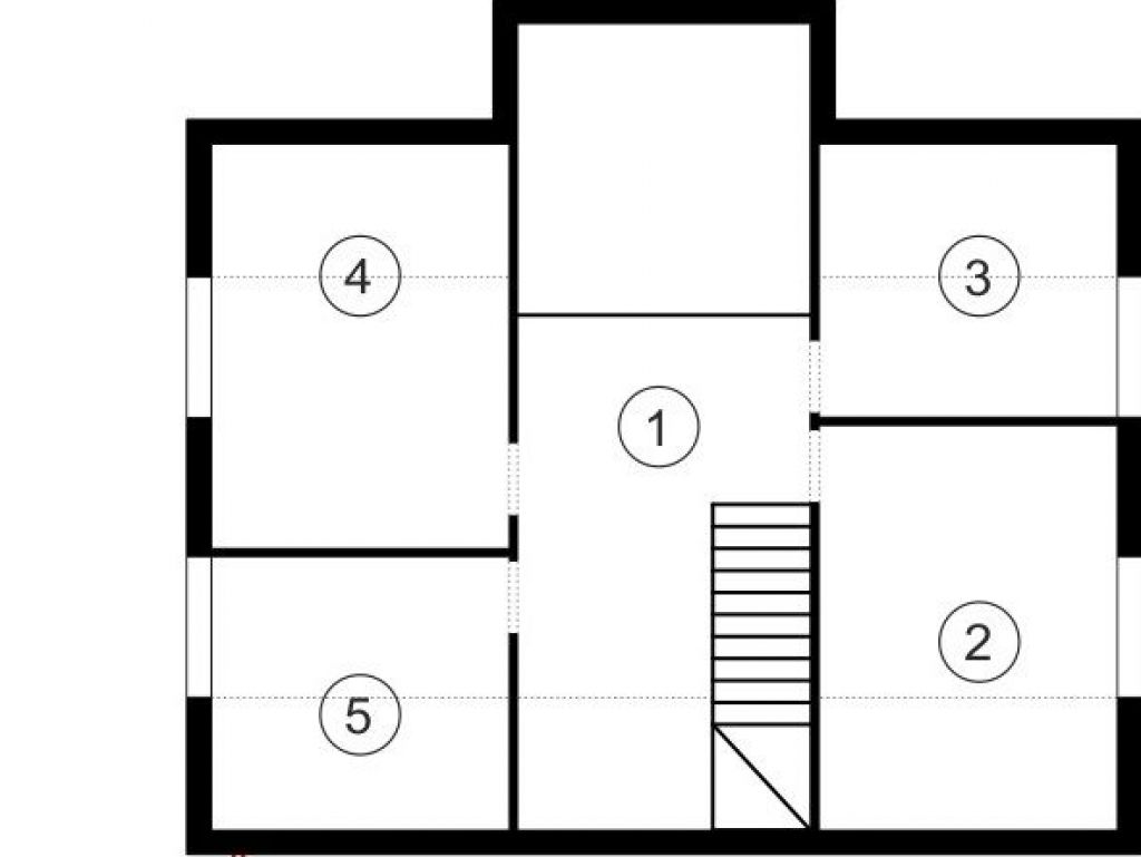
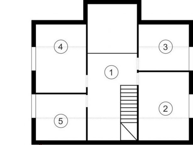
PODDASZE:
1. komunikacja 12,0m2
2. sypialnia 1 13,5m2
3. sypialnia 2 7,9m2
4. sypialnia 3 16,3m2
5. łazienka 7,9m2

RAZEM 54,9M2
  • Domy jednorodzinne